购图须知 / Notice for purchasing pictures
我们的图纸标配有:别墅设计效果图,平面方案设计图,建筑施工图,房子结构设计图,以及排水电气施工图。我们出售的图纸为打印件,配有高清效果图和全套施工图纸,图纸用A3纸打印,非常清晰,客户拿到就可以直接施工,我们不提供图纸电子版,成品图纸我们不做修改,因为即便改很小部分,很多图纸也要改,如果你有个性需求,请点击查看我们的定制设计流程,或者直接咨询我们客服。
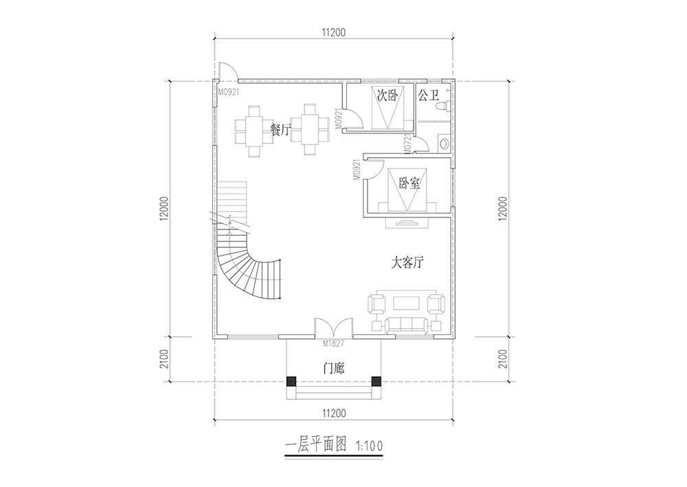
图纸详情 / Drawing details





我们的图纸标配有:别墅设计效果图,平面方案设计图,建筑施工图,房子结构设计图,以及排水电气施工图。我们出售的图纸为打印件,配有高清效果图和全套施工图纸,图纸用A3纸打印,非常清晰,客户拿到就可以直接施工,我们不提供图纸电子版,成品图纸我们不做修改,因为即便改很小部分,很多图纸也要改,如果你有个性需求,请点击查看我们的定制设计流程,或者直接咨询我们客服。




